MENU
INICIO
LA OFICINA
PROYECTOS
REHABILITACION
OBRA NUEVA
INDICE GEOGRAFICO
DISCURSOS Y PUBLICACIONES
PINTURA Y ESCULTURA
CONTACTO
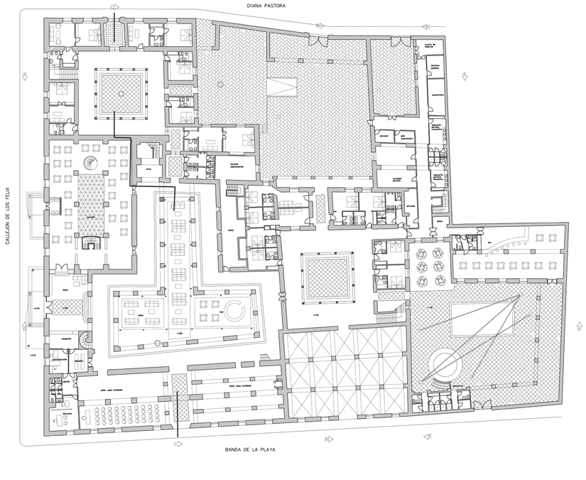
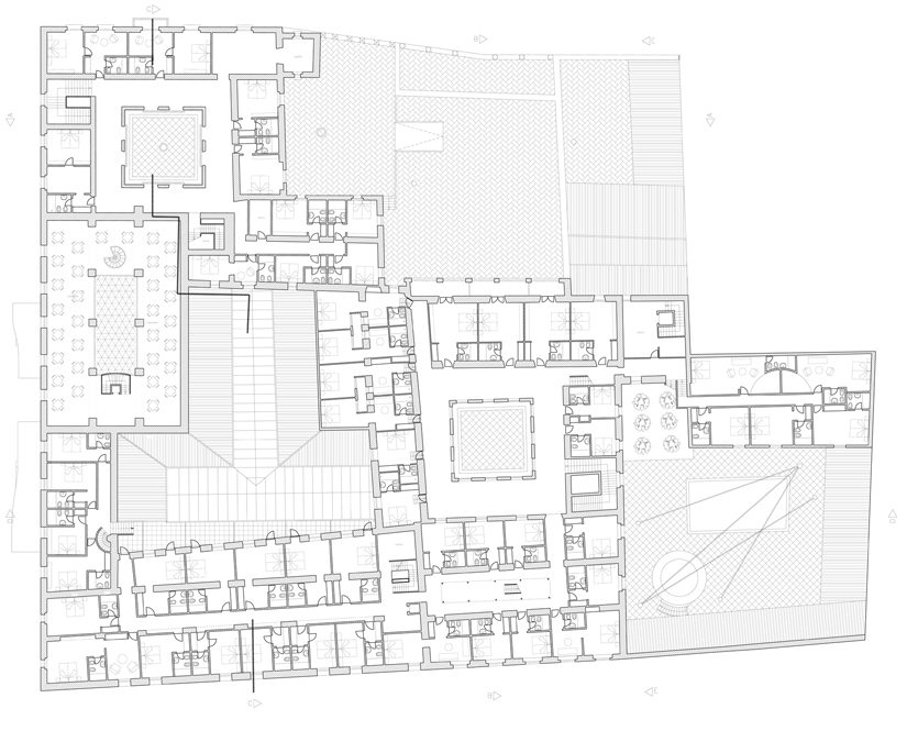
REHABILITACION INTEGRAL DE LA CASA GRANDE ARIZON. SANLUCAR DE BARRAMEDA, CADIZ
1. PROYECTO DE HOTEL DE 116 HABITACIONES
DESCRIPCION DEL PROYECTO
PLANOS DEL PROYECTO
Año: 1992
Volver
Superficie Construida: 10.696,48 m
2
Plano Situación
Planta Baja
Planta Primera
Planta Segunda
Planta Cubiertas
Sección A/A
Sección B/B
Sección C/C
Alzado a Calle Banda de Playa
Alzado a Calle Divina Pastora
Alzado a Calle V Centenario
←
Anterior
Siguiente
→