MENU
INICIO
LA OFICINA
PROYECTOS
REHABILITACION
OBRA NUEVA
INDICE GEOGRAFICO
DISCURSOS Y PUBLICACIONES
PINTURA Y ESCULTURA
CONTACTO
EDIFICACION EN MANZANA CERRADA. UA-6. MANZANAS 3, 4 Y 5, ANCHUELO, MADRID
IMAGENES
DESCRIPCION DEL PROYECTO
PLANOS DEL PROYECTO
Año: 2003
Superficie Construida: 6.989 m
2
Nº de Viviendas: 62
Planta Manzana 3
Planta Manzana 4
Planta Manzana 5
Sección A/A
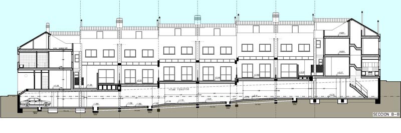
Sección B/B
Sección C/C
Detalles Constructivos
←
Anterior
Siguiente
→