MENU
INICIO
LA OFICINA
PROYECTOS
REHABILITACION
OBRA NUEVA
INDICE GEOGRAFICO
DISCURSOS Y PUBLICACIONES
PINTURA Y ESCULTURA
CONTACTO
VIVIENDAS UNIFAMILIARES, MECO, MADRID
IMAGENES
DESCRIPCION DEL PROYECTO
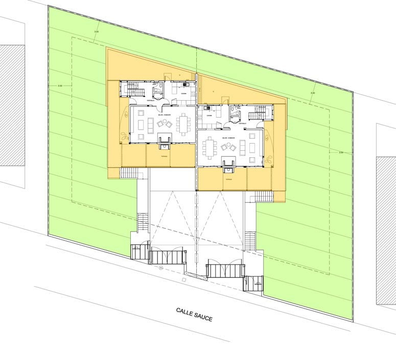
PLANOS DEL PROYECTO
Año: 2003
Superficie Construida: 508,64 m
2
Nº de Viviendas: 2
Implantación en Parcela
Sección A-A
Sección A-A
←
Anterior
Siguiente
→