MENU
INICIO
LA OFICINA
PROYECTOS
REHABILITACION
OBRA NUEVA
INDICE GEOGRAFICO
DISCURSOS Y PUBLICACIONES
PINTURA Y ESCULTURA
CONTACTO
EDIFICIO DE VIVIENDAS, GARAJE Y TRASTEROS. CALLE UNIÓN ESQUINA CALLE ELOY MUÑOZ, CIUDAD REAL
IMAGENES
DESCRIPCION DEL PROYECTO
PLANOS DEL PROYECTO
Año: 2005
Superficie Construida: 3.849 m
2
Nº de Viviendas: 27
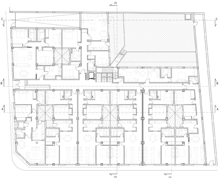
Planta Baja
Planta Bajo-Cubierta
Alzado a Calle Union
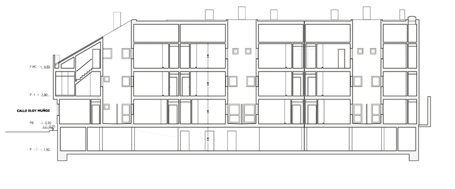
Alzado a Calle Eloy Muñoz
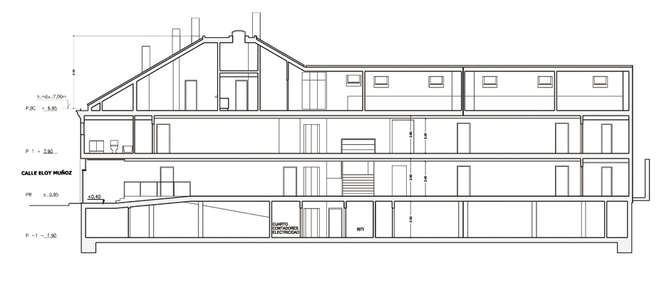
Sección A/A
Sección B/B
Sección C/C
Sección D/D
←
Anterior
Siguiente
→