MENU
INICIO
LA OFICINA
PROYECTOS
REHABILITACION
OBRA NUEVA
INDICE GEOGRAFICO
DISCURSOS Y PUBLICACIONES
PINTURA Y ESCULTURA
CONTACTO
REHABILITACION DE QUINTERIA. POLIGONO 49, PARCELA 1. CARRASCAL, TORRENUEVA. CIUDAD REAL
PROCESO CONSTRUCTIVO
IMAGENES
DESCRIPCION DEL PROYECTO
PLANOS DEL PROYECTO
Año: 2007
Superficie Construida: 479,90 m
2
Planta Baja Antes de la Rehabilitación
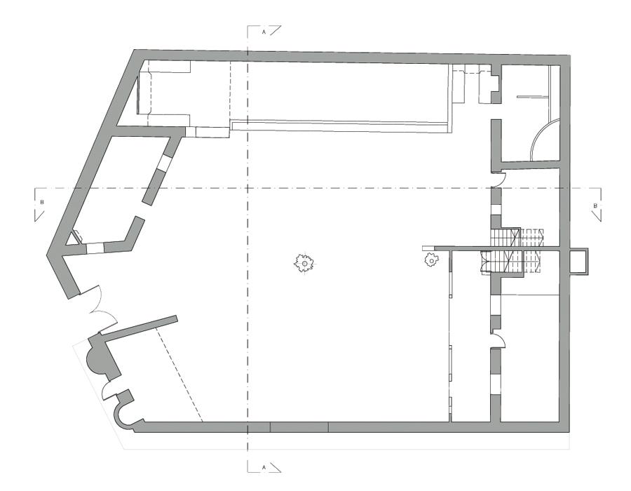
Planta Baja Tras la Rehabilitación
Alzado NO Antes de la Rehabilitación
Alzado NO Tras la Rehabilitación
Alzado SE Antes de la Rehabilitación
Alzado SE Tras la Rehabilitación
Alzado SO Antes de la Rehabilitación
Alzado SO tras la Rehabilitación
Alzado NE Antes de la Rehabilitación
Alzado NE Tras la Rehabilitación
Seccion A/A Antes de la Rehabilitación
Sección A/A Tras la Rehabilitación
Sección B/B Antes de la Rehabilitación
Sección B/B Tras la Rehabilitación
←
Anterior
Siguiente
→