MENU
INICIO
LA OFICINA
PROYECTOS
REHABILITACION
OBRA NUEVA
INDICE GEOGRAFICO
DISCURSOS Y PUBLICACIONES
PINTURA Y ESCULTURA
CONTACTO
PROYECTO DE REHABILITACION DEL EDIFICIO SITO EN PLAZA DE ESPAÑA Nº5. ZARAGOZA
IMAGENES
DESCRIPCION DEL PROYECTO
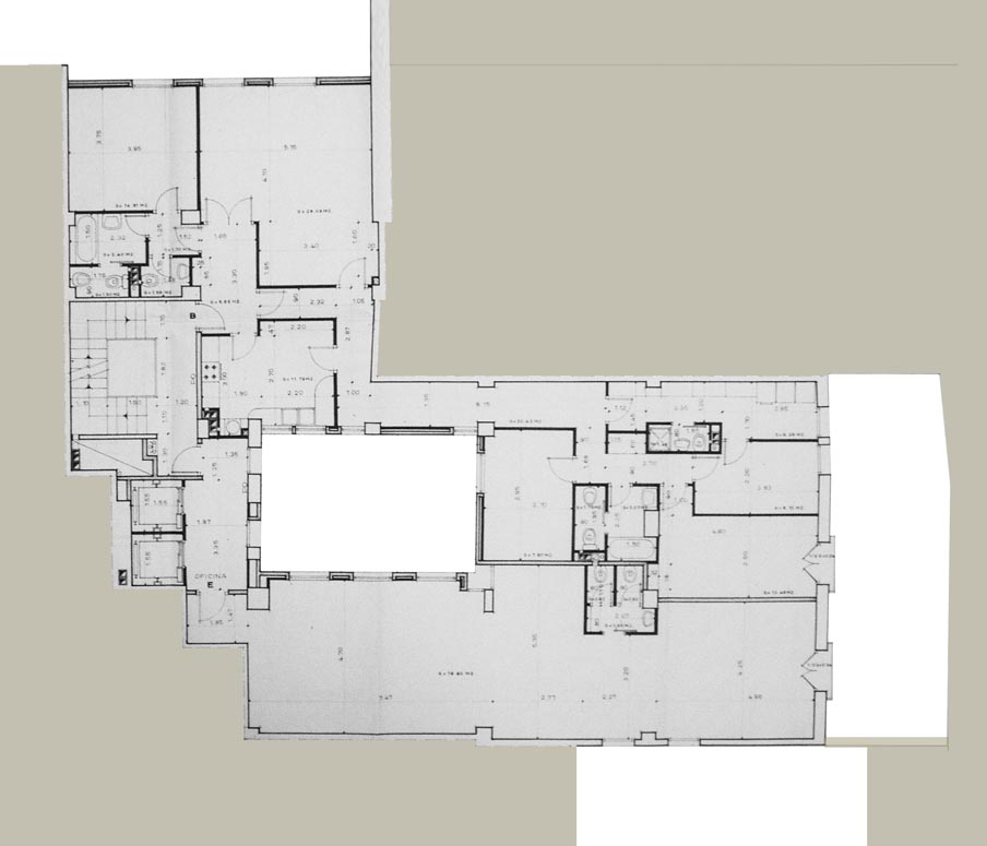
PLANOS DEL PROYECTO
Año: 1986
Superficie Construida: 1.872,13 m
2
Nº de Viviendas: 6
Nº de Oficinas: 5
Situación
Emplazamiento
Planta Baja
Plantas 1 a 4
Planta 5
Sección A-B
Sección C-D
←
Anterior
Siguiente
→